27A, Lingestraat, GR, 9725 GM
Per direct is deze unieke woning beschikbaar. De woning ligt op steenworp afstand van het station. Binnen 5 minuten fietsen ben je in de binnenstad van Groningen. De woning vind je in de gewilde wijk de Rivierenbuurt, deze wijk is van alle gemakken voorzien zoals een supermarkt en verse bakker.
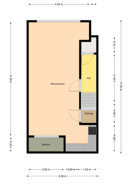
Het betreft een woning met drie verdiepingen. Op de 1e verdieping bevindt zich de riante woonkamer van 30 m2 met aansluitend de keuken. Deze verdieping is voor zowel aan de voorzijde en achterzijde voorzien van grote ramen wat zorgt voor veel lichtinval. Daarnaast is er aan de achterzijde een balkon. Op de 2de verdieping bevinden zich twee slaapkamers van 10 m2 en 11 m2, een apart toilet en een badkamer met ruime inloopdouche. Deze verdieping heeft iets extra’s, dat is namelijk het dakterras. Tot slot bevindt zich op de 3de verdieping een ruime slaapkamer/zolderruimte van 16 m2.
De huur voor deze woning bedraagt € 1.400 excl. gas, water en licht. De servicekosten zijn bij de huur inbegrepen.